Founders Fund Roof Deck
Interior Architecture ; Office
Founders Fund : Client
San Francisco, CA : Location
700 s.f. : Program
Executive Architectural : Services
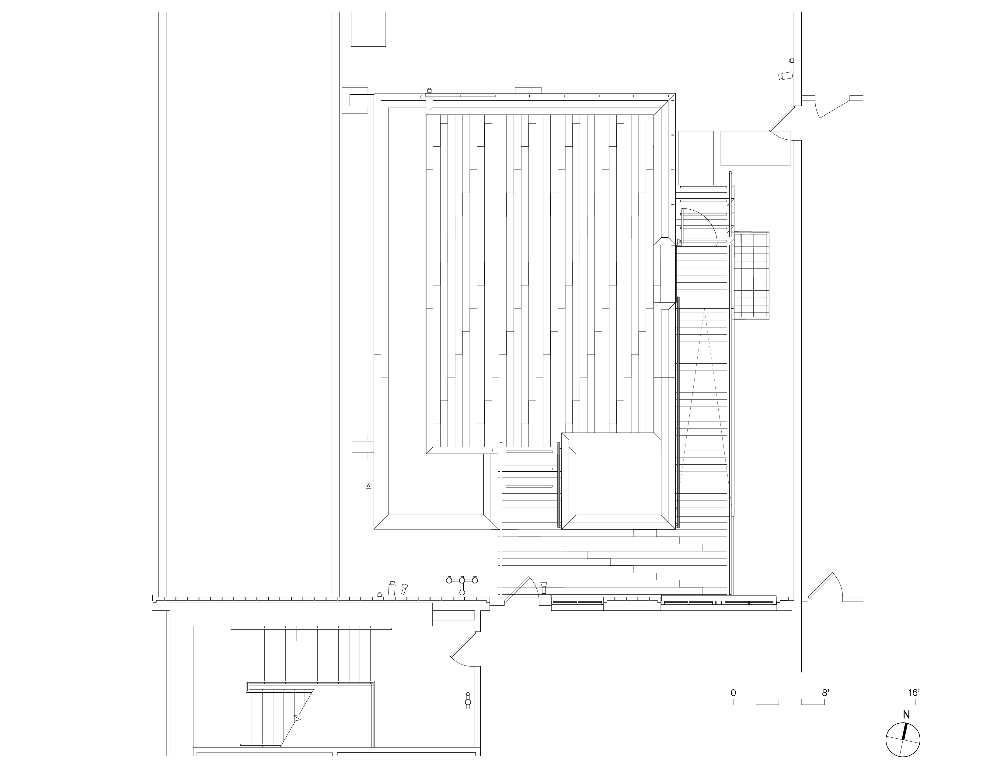
An outdoor relaxation space for a financial
services client in the Presidio of San Francisco
The 700 square feet roof deck offers
employees an outdoor workspace views of the Golden Gate Bridge and San
Francisco Bay. Heated bench seating allows for use in cooler weather. 3’-0”
succulent planters along the edges allow the view to be unimpeded, without
guardrails.
An outdoor relaxation space for a financial
services client in the Presidio of San Francisco
The 700 square feet roof deck offers employees an outdoor workspace views of the Golden Gate Bridge and San Francisco Bay. Heated bench seating allows for use in cooler weather. 3’-0” succulent planters along the edges allow the view to be unimpeded, without guardrails.
The 700 square feet roof deck offers employees an outdoor workspace views of the Golden Gate Bridge and San Francisco Bay. Heated bench seating allows for use in cooler weather. 3’-0” succulent planters along the edges allow the view to be unimpeded, without guardrails.




